Белуха №225

Цена строительства от 8 220 000 ₽* * Стоимость не является окончательной
Заявка на консультацию
  • Общая площадь 120 м2
  • Длина 11 м
  • Ширина 15.6 м
  • Материал стен Профилированный брус
  • Количество этажей 1
  • Подвал Нет
  • Мансарда без мансарды
  • Гараж Нет
  • Терраса Да
  • Проживание Круглогодичное
  • Количество комнат 5
  • Количество спален 4
  • Количество санузлов 2
  • Вид проекта дом
  • Застройщик LITEWOOD
  • Архитектурный стиль Шале
  • Отделка фасада Тонировка
  • Крыша Двускатная
  • Можно купить домокомплект Нет
  • Модульный тип строения Нет
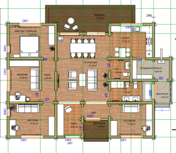
Планировки
Описание проекта

Дом Белуха начинается с просторной входной зоны, соединенной с гостиной большим окном-порталом, через которую гостиная наполняется светом. Из прихожей мы попадаем в большую кухню-гостиную, справа от которой расположены санузлы и гостевая спальня, а слева приватная зона с 4 спальнями. Из кухни-гостиной предусмотрен выход на огромную полуоткрытую террасу.

Вас может заинтересовать
Вас может заинтересовать

Выбор местоположения

Задать вопрос / написать нам

E-mail: domgis@mail.ru

Мы свяжемся с Вами в течение дня.

Тех. поддержка
Предмет обращения:
Тукущая страница

Мы свяжемся с Вами в течение дня.

Обратный звонок
Обратный звонок
Выберите ваш город
Пожаловаться

Объявление опубликовано.
Изменения сохранены

Период публикации - бессрочный, при условии подтверждения актуальности каждые 50 дней. Уведомления будут отправляться на Вашу электронную почту.

Выберите причину снятия с публикации

Снятые с публикации объявления не участвуют в поиске и недоступны для подробного просмотра.

Для повторной публикации нажмите «Вернуть в публикацию»