ВЕНТАНА №223

Цена строительства от 6 528 000 ₽* * Стоимость не является окончательной
Заявка на консультацию
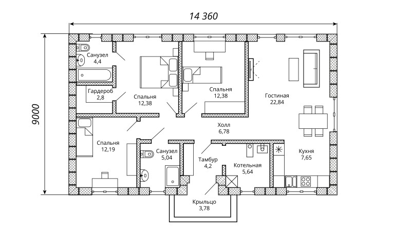
  • Общая площадь 96 м2
  • Длина 14.36 м
  • Ширина 9 м
  • Материал стен Газобетон/пеноблок
  • Количество этажей 1
  • Подвал Нет
  • Мансарда без мансарды
  • Гараж Нет
  • Терраса Да
  • Проживание Круглогодичное
  • Количество комнат 4
  • Количество спален 3
  • Количество санузлов 2
  • Вид проекта дом
  • Застройщик Rielt Market Stroy
  • Архитектурный стиль Современный
  • Отделка фасада Комбинированная
  • Крыша Двускатная
  • Можно купить домокомплект Нет
  • Модульный тип строения Нет
Планировки
Описание проекта

Комплектация дома Сибит 96 м2:

Фундамент: Ленточный фундамент/Монолитная бетонная плита.

Стены: Газобетонные блоки (сибит) 400мм, 300мм с утеплением

Кровля:

  •  перекрытие: обработанные деревянные балки
  •  стропильная система: обработанные деревянные балки
  •  гидроизоляционная мембрана
  •  металлочерепица
  •  утеплитель: задувная минеральная вата

Фасад (под ключ): Мокрый фасад с декоративными деревянными вставками

Инженерные сети:

  •  электрокотел
  •  электрощиток
  •  система отопления: радиаторы/теплый пол
  •  скважина
  •  вентиляция (кухня, котельная, санузел)
  •  септик 2шт. по 3 м3

Окна /двери:

  •  белые окна/кашированные, 5ти камерный профиль
  •  Входная дверь ПВХ/Металлическая с терморазрывом

Планировка:

  •  Кухня-гостиная
  •  2 спальни
  •  1 мастер спальня со своим отдельным гардеробом и санузлом
  •  Санузел
  •  Прихожая
  •  Котельная


Вас может заинтересовать
Вас может заинтересовать

Выбор местоположения

Задать вопрос / написать нам

E-mail: domgis@mail.ru

Мы свяжемся с Вами в течение дня.

Тех. поддержка
Предмет обращения:
Тукущая страница

Мы свяжемся с Вами в течение дня.

Обратный звонок
Обратный звонок
Выберите ваш город
Пожаловаться

Объявление опубликовано.
Изменения сохранены

Период публикации - бессрочный, при условии подтверждения актуальности каждые 50 дней. Уведомления будут отправляться на Вашу электронную почту.

Выберите причину снятия с публикации

Снятые с публикации объявления не участвуют в поиске и недоступны для подробного просмотра.

Для повторной публикации нажмите «Вернуть в публикацию»