Крупской №592

Цена строительства от 4 640 000 ₽* * Стоимость не является окончательной
Заявка на консультацию
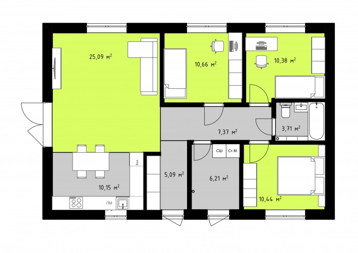
  • Общая площадь 89 м2
  • Длина 12.8 м
  • Ширина 8.6 м
  • Материал стен Газобетон/пеноблок
  • Количество этажей 1
  • Подвал Нет
  • Мансарда без мансарды
  • Гараж Нет
  • Терраса Нет
  • Проживание Круглогодичное
  • Количество комнат 4
  • Количество спален 3
  • Количество санузлов 1
  • Вид проекта дом
  • Застройщик DMGroup
  • Крыша Двускатная
  • Можно купить домокомплект Нет
  • Модульный тип строения Нет
Планировки
Описание проекта
  • Фундамент – ЖБ плита ребристая; 
  • Стены – автоклавный газобетон;
  • Перекрытия – монолитные +деревянные;
  • Кровля – утепленная, профлист;
  • Окна – 5ти камерный профиль кашированные;
  • Отмостка – Скрытая;
  • Инженерка – Ввод водоснабжения и электрики в дом. Вывод стоков; 

Вас может заинтересовать
Вас может заинтересовать

Выбор местоположения

Задать вопрос / написать нам

E-mail: domgis@mail.ru

Мы свяжемся с Вами в течение дня.

Тех. поддержка
Предмет обращения:
Тукущая страница

Мы свяжемся с Вами в течение дня.

Уведомление
Предмет обращения:
Тукущая страница
Обратный звонок
Обратный звонок
Выберите ваш город
Пожаловаться

Объявление опубликовано.
Изменения сохранены

Период публикации - бессрочный, при условии подтверждения актуальности каждые 50 дней. Уведомления будут отправляться на Вашу электронную почту.

Выберите причину снятия с публикации

Снятые с публикации объявления не участвуют в поиске и недоступны для подробного просмотра.

Для повторной публикации нажмите «Вернуть в публикацию»