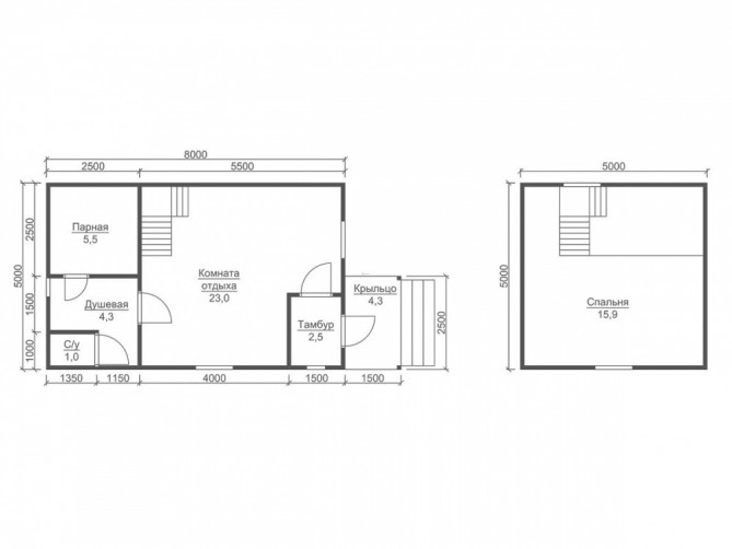
Проект 12 – баня 5х8 м в компании малоэтажные дома. поражает изяществом внешнего вида. двухэтажная баня с включает в себя все необходимые для комфортного загородного отдыха в помещение.
Высота потолков бани из бруса – 2,05 м. Цвет двускатной крыши с металлическим покрытием на выбор: . Монтаж стен подразумевает прокладку джутового льна между брусом. профилированный брус 100 х 150 мм применяется при возведении стен и перегородок. Окна бани из бруса устанавливаются зимние и летние время, двойные. Полы двойные: полуобрезная доска 20 – 25 мм используется для чернового пола, а для чистового применяется строганная шпунтованная доска не менее 27 мм. Баня из бруса общей площадью 56 кв.м. может быть выполнена в двух ценовых вариантах в зависимости от используемого бруса: 140 х 140 мм либо 90 х 140 мм.
Уточнить все нюансы строительства размеров, видов и стоимости бань из бруса можно у наших консультантов. Кроме готовых проектов бань из бруса, мы разрабатываем индивидуальные, согласно всем предпочтениям клиента. Обратитесь к нам, и мы спроектируем и построим баню из бруса вашей мечты в городе Новосибирск.
Проф.брус 100х150 мм
Цена, сруб 1250 000 руб
Цена, под ключ 2150 000 руб
Проф.брус 150х150 мм
Цена, сруб 1450 000 руб
Цена, под ключ 2300 000 руб
Выбор местоположения
Мы свяжемся с Вами в течение дня.