Торбеево №422

Цена строительства от 2 790 000 ₽* * Стоимость не является окончательной
Заявка на консультацию
  • Общая площадь 76 м2
  • Длина 8.75 м
  • Ширина 7.5 м
  • Количество этажей 1
  • Подвал Нет
  • Мансарда без мансарды
  • Гараж Нет
  • Терраса Нет
  • Проживание Круглогодичное
  • Количество комнат 2
  • Количество спален 1
  • Количество санузлов 1
  • Вид проекта дом
  • Застройщик МАЛОЭТАЖНЫЕ ДОМА
  • Архитектурный стиль Современный
  • Отделка фасада Комбинированная
  • Крыша Двускатная
  • Можно купить домокомплект Нет
  • Модульный тип строения Нет
Планировки
Описание проекта

В доме по проекту «Торбеево» отдыхает душа, тело и радуется глаз. Стильный, светлый, удобный и достаточно просторный одноэтажный дом из СИП панелей станет идеальным решением в качестве летнего домика, дачи или же дома для проживания семьи без детей или холостяка.

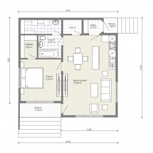
В доме всего одна спальня 13,335 м2, с гардеробной комнатой на 3,018 м2. Зато есть просторная кухня-гостиная на 33 м2 и санузел на 9 м2. В доме два входа. Один сразу в гостиную, с крытого крыльца-террасы площадью около 5 м2, второй с небольшого крыльца 1,7м2 ведет в тамбур, а из тамбура снова же попадаем в гостиную. Из гостиной можно пройти в помещение, которое может стать гардеробом или котельной, в спальню и санузел.

В доме сразу несколько интересных дизайнерских решений. В первую очередь, бросается в глаза двускатная разноуровневая крыша. Причем она реализована таким образом, что создает впечатление дома с мансардой. Такой эффект достигается за счет «двухэтажного» формата окон в торце здания. На «первом» этаже панорамные окна, а на «втором» - треугольные и тоже на всю стену. Причем это реализовано как в гостиной, так и в спальне. Отметим также, что гостиная и спальня имеют еще по одному панорамному окну на другой стене. Таким образом дом получился максимально открытым для солнечных лучей.

При этом нужно не забыть о крыльце-террасе, которое расположено под прозрачной крышей и позволяет разместить небольшой столик и пару стульев для утреннего кофе на свежем воздухе.

Вас может заинтересовать
Вас может заинтересовать

Выбор местоположения

Задать вопрос / написать нам

E-mail: domgis@mail.ru

Мы свяжемся с Вами в течение дня.

Тех. поддержка
Предмет обращения:
Тукущая страница

Мы свяжемся с Вами в течение дня.

Обратный звонок
Обратный звонок
Выберите ваш город
Пожаловаться

Объявление опубликовано.
Изменения сохранены

Период публикации - бессрочный, при условии подтверждения актуальности каждые 50 дней. Уведомления будут отправляться на Вашу электронную почту.

Выберите причину снятия с публикации

Снятые с публикации объявления не участвуют в поиске и недоступны для подробного просмотра.

Для повторной публикации нажмите «Вернуть в публикацию»