CUBIC HOUSE

Работает с 2022 года
Кол-во построенных объектов: 50
Кол-во типовых проектов: 4

Описание

Строим быстровозводимые дома, дачи и офисы из морских контейнеров с гарантией до 5 лет!

Компания Cubic House является непосредственным производителем.

Чем хорош Ваш новый дом?

  • Инновационный дизайн и эргономичное использование каждого квадратного метра пространства.
  • Современные технологии и Смарт-системы.
  • Современный дизайн и качественные материалы.
  • Интеллектуальное использование пространства, все продумано до мелочей.
  • Минималистичный стиль, придающий пространств лёгкость и гармонию.

Реализуем Ваш дизайн проект и визуализацию в короткий срок.

CUBIC HOUSE стремится больше к экслюзиву и мы не боимся тяжелых и нестандартных проектов.

Последнее время дома из морских контейнеров распространились по всему миру. Все чаще мы можем видеть проекты таких домов. Большой выбор цветов и возможность создавать различные конфигурации позволяют удовлетворить любые пожелания заказчика.

Ключевые особенности

Любое цветовое решение на ваш выбор

География нашего строительства

Мы организуем доставку даже в самые отдалённые регионы и построим идеальный объект для жизни или бизнеса

Безопасность

Дозиметр СОЭКС Квантум внесен в реестр средств измерения (Сертификат об утверждении типа средства измерений № 86401-22, выдано 10 августа 2022г. Федеральным агентством по техническому регулированию и метрологии)

Также возводим коммерческие проекты

Офис из контейнера | 20 футов DC

Каждый из нас уже видел такие точки. Идеальное решение как для стартапа, так и для филиала крупной компании. Благодаря простоте установки и небольшому размеру возможна установка почти в любом месте города. Большой выбор цветовых решений позволит подобрать вариант подходящий под любой корпоративный цвет. Стильное современное решение уж точно не оставит вас незамеченным.

Стоимость от 950 000 ₽

  • Длина - 6 м
  • Ширина - 2,5 м
  • Высота - 2,5 м
  • Площадь - 15 м2

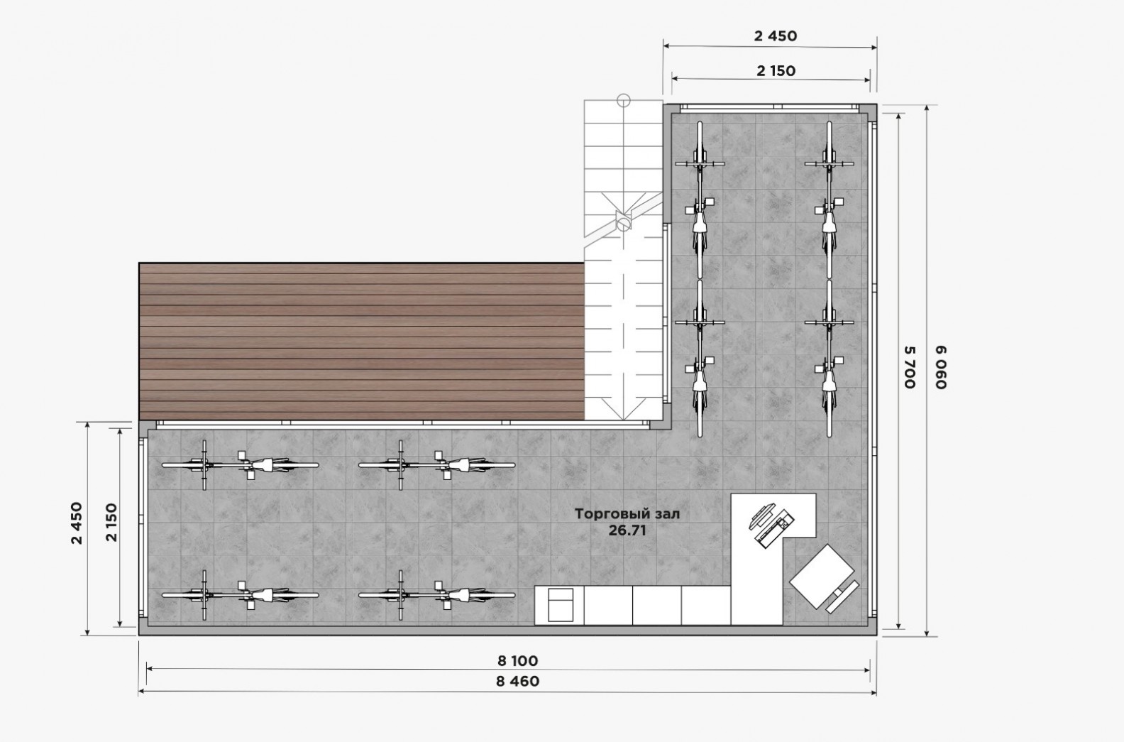
Контейнер для коммерческой деятельности 30м2

Задать вопрос

Выбор местоположения

Задать вопрос / написать нам

E-mail: domgis@mail.ru

Мы свяжемся с Вами в течение дня.

Тех. поддержка
Предмет обращения:
Тукущая страница

Мы свяжемся с Вами в течение дня.

Обратный звонок
Обратный звонок
Выберите ваш город
Пожаловаться

Объявление опубликовано.
Изменения сохранены

Период публикации - бессрочный, при условии подтверждения актуальности каждые 50 дней. Уведомления будут отправляться на Вашу электронную почту.

Выберите причину снятия с публикации

Снятые с публикации объявления не участвуют в поиске и недоступны для подробного просмотра.

Для повторной публикации нажмите «Вернуть в публикацию»