Продажа: Дом 130 м² + участок №54:19:022301:8887 6,8 соток
село Марусино, посёлок Соловьи, Волошина, 1 (Новосибирский район)

цена 13 800 000 руб.

№ объекта: 25502

Обновлено: 22.01.2026

  • Отключить автопереход
    карты со схемы на гибрид
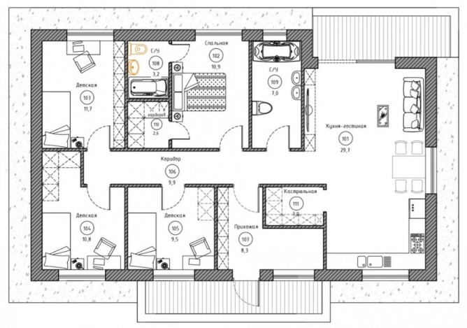
Одноэтажный дом с комбинированным фасадом. Общая площадь - 130м². 4 спальни. Кухня-гостиная с панорамными окнами и выходом на террасу. На кухне предусмотрено помещение для хранения кухонной утвари площадью 3м²
  • Общее описание
  • Местоположение
  • Информация об объекте
  • Информация о земле/участке
  • Коммуникации
  • Поселковая инфраструктура
  • Прочее
Одноэтажный дом с комбинированным фасадом. Общая площадь - 130м². 4 спальни. Кухня-гостиная с панорамными окнами и выходом на террасу. На кухне предусмотрено помещение для хранения кухонной утвари площадью 3м²

Местоположение

Регион
Новосибирская область
Район региона
Новосибирский район
Населенный пункт
село Марусино
Муниципальное образование
Криводановский сельсовет
Микрорайон
посёлок Соловьи
Улица
Волошина
Номер дома
1

Информация об объекте

Подтип недвижимости
Дом/коттедж
Вид строения
Незавершенное строительство
Площадь объекта (м²)
130.00
Год постройки
2024
Санузел
Внутренний
Возможность прописки
есть

Информация о земле/участке

Номер участка
54:19:022301:8887
Площадь участка
6.84 сот
Категория земель
Земли населенных пунктов
Разрешенное использование
ИЖС

Коммуникации

Электричество
есть
Водоснабжение
есть
Вид водоснабжения
Круглогодичное
Газоснабжение
Магистральный по границе участка
Отопление
Центральное отопление
Канализация
Септик
Проводной интернет
возможность подключения

Поселковая инфраструктура

Внутрипоселковая дорога
Асфальтированная
Проживание
Круглогодичное

Выбор местоположения

Задать вопрос / написать нам

E-mail: domgis@mail.ru

Мы свяжемся с Вами в течение дня.

Тех. поддержка
Предмет обращения:
Тукущая страница

Мы свяжемся с Вами в течение дня.

Уведомление
Предмет обращения:
Тукущая страница
Обратный звонок
Обратный звонок
Выберите ваш город
Пожаловаться

Объявление опубликовано.
Изменения сохранены

Период публикации - бессрочный, при условии подтверждения актуальности каждые 50 дней. Уведомления будут отправляться на Вашу электронную почту.

Выберите причину снятия с публикации

Снятые с публикации объявления не участвуют в поиске и недоступны для подробного просмотра.

Для повторной публикации нажмите «Вернуть в публикацию»