Продажа: Дом 134 м² + участок №54:19:072501:9294 7,7 соток
село Ленинское, микрорайон Благополье (Новосибирский район)

цена договорная

№ объекта: 34144

Обновлено: 22.01.2026

  • Отключить автопереход
    карты со схемы на гибрид

Стоимость: На стадии строительства - 8 500 000 р.

Готовый - от 11 00 000 р.


Дом подходит под все виды ипотек: господдержка, семейная, сельская и т.д.

Дом сдается в предчистовой отделке:

  • стены - штукатурка по маякам
  • отопление
  • теплый пол
  • полусухая стяжка пола под чистовое покрытие
  • окна пластиковые 5камер veka
  • канализация - септик 6м3 заведен в дом
  • центральная вода и электричество заведены в дом


Сам дом на монолитной плите 300мм, отсыпка пгс 300мм, разводка слива, стены и перегородки кирпичные, утепление стен, штукатуреный фасад «короед», плиты перекрытия ж/б, утепленная плоская кровля, разноуровневые потолки 3-3,5 м.

Можем выполнить чистовой ремонт: разводка всех коммуникаций под ключ, шпаклевка стен, откосы окон, подоконники, полы керамогранит, с/у плитка, инсталляция, установка санфаянс и т.д. Все это рассчитывается отдельно.

  • Общее описание
  • Местоположение
  • Информация об объекте
  • Информация о земле/участке
  • Коммуникации
  • Поселковая инфраструктура
  • Прочее

Стоимость: На стадии строительства - 8 500 000 р.

Готовый - от 11 00 000 р.


Дом подходит под все виды ипотек: господдержка, семейная, сельская и т.д.

Дом сдается в предчистовой отделке:

  • стены - штукатурка по маякам
  • отопление
  • теплый пол
  • полусухая стяжка пола под чистовое покрытие
  • окна пластиковые 5камер veka
  • канализация - септик 6м3 заведен в дом
  • центральная вода и электричество заведены в дом


Сам дом на монолитной плите 300мм, отсыпка пгс 300мм, разводка слива, стены и перегородки кирпичные, утепление стен, штукатуреный фасад «короед», плиты перекрытия ж/б, утепленная плоская кровля, разноуровневые потолки 3-3,5 м.

Можем выполнить чистовой ремонт: разводка всех коммуникаций под ключ, шпаклевка стен, откосы окон, подоконники, полы керамогранит, с/у плитка, инсталляция, установка санфаянс и т.д. Все это рассчитывается отдельно.

Местоположение

Регион
Новосибирская область
Район региона
Новосибирский район
Населенный пункт
село Ленинское
Муниципальное образование
Морской сельсовет
Микрорайон
микрорайон Благополье
Ориентир
54:19:072501:9294

Информация об объекте

Подтип недвижимости
Дом/коттедж
Вид строения
Незавершенное строительство
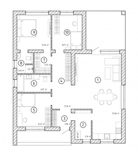
Площадь объекта (м²)
134.33
Год постройки
2024
Материал дома
Кирпич
Этажность
1
Санузел
Внутренний
Терасса
есть
Мебель
нет
Возможность прописки
есть

Информация о земле/участке

Номер участка
54:19:072501:9294
Площадь участка
7.73 сот
Категория земель
Земли населенных пунктов
Разрешенное использование
ИЖС

Коммуникации

Электричество
есть
Водоснабжение
есть
Вид водоснабжения
Круглогодичное
Тип водоснабжения
Центральное
Газоснабжение
Магистральный в доме или на участке
Канализация
Септик
Проводной интернет
возможность подключения

Поселковая инфраструктура

Внутрипоселковая дорога
Асфальтированная
Проживание
Круглогодичное
Уличное освещение
есть

Выбор местоположения

Задать вопрос / написать нам

E-mail: domgis@mail.ru

Мы свяжемся с Вами в течение дня.

Тех. поддержка
Предмет обращения:
Тукущая страница

Мы свяжемся с Вами в течение дня.

Уведомление
Предмет обращения:
Тукущая страница
Обратный звонок
Обратный звонок
Выберите ваш город
Пожаловаться

Объявление опубликовано.
Изменения сохранены

Период публикации - бессрочный, при условии подтверждения актуальности каждые 50 дней. Уведомления будут отправляться на Вашу электронную почту.

Выберите причину снятия с публикации

Снятые с публикации объявления не участвуют в поиске и недоступны для подробного просмотра.

Для повторной публикации нажмите «Вернуть в публикацию»