Продажа: Дом 877 м² + участок 27,6 соток
дачный посёлок Мочище, Лесная поляна, Лесная Поляна, 23 (Новосибирский район)

цена 150 000 000 руб.

№ объекта: 8560

Обновлено: 22.01.2026

  • Отключить автопереход
    карты со схемы на гибрид
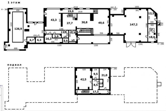
Коттеджный поселок элитного-класса «Лесная поляна» основан в 1994 году. «Лесная поляна» по всем параметрам может считаться образцом качественного и комфортного загородного жилья с развитой инфраструктурой, территория поселка огорожена и круглосуточно охраняется. На территории два озера (в озерах есть рыба), две детские площадки, лес на каждом участке сосны, ели, березы, от Краснояровского шоссе отделяет лесополоса шириной 600меров. Сюда легко добраться на общественном транспорте или авто: качественная асфальтированная дорога соединяет этот поселок c оживленными трассами Краснояровским и Мочищенским шоссе. От М Заельцовская всего 9 км. Основные инженерные коммуникации, подведенные к каждому домовладению: интернет-кабель от Ростелеком, газовая магистраль, электроэнергия 220/380В, центральное водоснабжение, водоотведение септики. Инфраструктура в шаговой доступности: школа, детский сад, рынок «Крестьянская Слобода», магазины: «Пятерочка», «Ярче 24/7». Продается коттедж, расположенный в центральной части общества. Коттедж построен с соблюдением СНиПов предусмотренных для капитальных строений. Авторские проекты строительной части и дизайна дома, большая площадь 877квм дома и 27,6 соток земельного участка позволяют чувствовать себя ярким индивидуалистом при этом насладиться объемами дома и просторами среди естественного соснового леса. Площадь дома: 877 кв.м. Этажность: три этажа. Материал стен: кирпич, облицовка фасадной доской. Площадь земельного участка: 27,6 соток. Спальни: Три больших: 27квм, 35 квм,18квм с индивидуальными санузлами и выходами на 2 просторных террасы. Зона кухни-столовой: 82 квм. Каминная зона 30,8квм. Бассейн 127 квм с зоной СПА и 2 санузлами Гараж: 147 квм, на 3 автомобиля. Котельная: газовая.
  • Общее описание
  • Местоположение
  • Информация об объекте
  • Информация о земле/участке
  • Коммуникации
  • Поселковая инфраструктура
  • Прочее
Коттеджный поселок элитного-класса «Лесная поляна» основан в 1994 году. «Лесная поляна» по всем параметрам может считаться образцом качественного и комфортного загородного жилья с развитой инфраструктурой, территория поселка огорожена и круглосуточно охраняется. На территории два озера (в озерах есть рыба), две детские площадки, лес на каждом участке сосны, ели, березы, от Краснояровского шоссе отделяет лесополоса шириной 600меров. Сюда легко добраться на общественном транспорте или авто: качественная асфальтированная дорога соединяет этот поселок c оживленными трассами Краснояровским и Мочищенским шоссе. От М Заельцовская всего 9 км. Основные инженерные коммуникации, подведенные к каждому домовладению: интернет-кабель от Ростелеком, газовая магистраль, электроэнергия 220/380В, центральное водоснабжение, водоотведение септики. Инфраструктура в шаговой доступности: школа, детский сад, рынок «Крестьянская Слобода», магазины: «Пятерочка», «Ярче 24/7». Продается коттедж, расположенный в центральной части общества. Коттедж построен с соблюдением СНиПов предусмотренных для капитальных строений. Авторские проекты строительной части и дизайна дома, большая площадь 877квм дома и 27,6 соток земельного участка позволяют чувствовать себя ярким индивидуалистом при этом насладиться объемами дома и просторами среди естественного соснового леса. Площадь дома: 877 кв.м. Этажность: три этажа. Материал стен: кирпич, облицовка фасадной доской. Площадь земельного участка: 27,6 соток. Спальни: Три больших: 27квм, 35 квм,18квм с индивидуальными санузлами и выходами на 2 просторных террасы. Зона кухни-столовой: 82 квм. Каминная зона 30,8квм. Бассейн 127 квм с зоной СПА и 2 санузлами Гараж: 147 квм, на 3 автомобиля. Котельная: газовая.

Местоположение

Регион
Новосибирская область
Район региона
Новосибирский район
Населенный пункт
дачный посёлок Мочище
Муниципальное образование
Мочищенский сельсовет
Направление
Пашино - Сосновка - Степной
Микрорайон
Лесная поляна
Улица
Лесная Поляна
Номер дома
23
Ориентир
поворот налево сразу после указателя Лесная Поляна и поворота на ул. Кубовая Карьера Мочище

Информация об объекте

Подтип недвижимости
Дом/коттедж
Вид строения
Готовое
Площадь объекта (м²)
877.00
Год постройки
2007
Материал дома
Кирпич
Этажность
3
Кол-во жилых помещений
5
Санузел
Внутренний
Терасса
есть
Мебель
есть
Возможность прописки
есть

Информация о земле/участке

Площадь участка
27.63 сот
Категория земель
Земли населенных пунктов
Разрешенное использование
ИЖС
Благоустройства
Гараж, Забор, Культурные насаждения

Коммуникации

Электричество
есть
Водоснабжение
есть
Вид водоснабжения
Круглогодичное
Тип водоснабжения
Центральное
Газоснабжение
Магистральный в доме или на участке
Отопление
Центральное отопление
Канализация
Септик
Проводной интернет
есть

Поселковая инфраструктура

Внутрипоселковая дорога
Асфальтированная
Охрана
есть
Проживание
Круглогодичное
Уличное освещение
есть
Общественные внутрипоселковые зоны
Детские площадки, Магазины, Прогулочная парковая зона
Дополнительная информация
Коттедж расположен в населенном пункте Лесная Поляна одним из самых престижных коттеджных поселков д.п. Мочище.

Прочее

Поставлен на кадастровый учет
да
Кадастровый паспорт с установленными границами
да

Выбор местоположения

Задать вопрос / написать нам

E-mail: domgis@mail.ru

Мы свяжемся с Вами в течение дня.

Тех. поддержка
Предмет обращения:
Тукущая страница

Мы свяжемся с Вами в течение дня.

Уведомление
Предмет обращения:
Тукущая страница
Обратный звонок
Обратный звонок
Выберите ваш город
Пожаловаться

Объявление опубликовано.
Изменения сохранены

Период публикации - бессрочный, при условии подтверждения актуальности каждые 50 дней. Уведомления будут отправляться на Вашу электронную почту.

Выберите причину снятия с публикации

Снятые с публикации объявления не участвуют в поиске и недоступны для подробного просмотра.

Для повторной публикации нажмите «Вернуть в публикацию»