Дом №9 №412

Цена строительства от 0 ₽* * Стоимость не является окончательной
Заявка на консультацию
  • Общая площадь 236 м2
  • Количество этажей 1
  • Подвал Нет
  • Мансарда без мансарды
  • Гараж Да
  • Терраса Да
  • Проживание Круглогодичное
  • Количество комнат 4
  • Количество спален 3
  • Количество санузлов 3
  • Вид проекта дом
  • Застройщик CK REAL PROGRESS
  • Архитектурный стиль Минимализм
  • Отделка фасада Комбинированная
  • Крыша Плоская
  • Можно купить домокомплект Нет
  • Модульный тип строения Нет
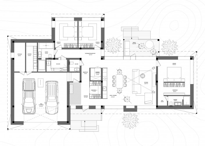
Планировки
Описание проекта

Геометрия минимализма и стиля

Дом с лаконичным дизайном, где четкие линии и простые формы гармонично вписываются в природный ландшафт. Панорамные окна размывают границы между интерьером и природой, наполняя дом светом и свежестью. Просторная планировка предусматривает всё необходимое для комфортной жизни семьи, включая места для отдыха и общения. Использованные материалы отличаются долговечностью и экологичностью, что делает дом не только стильным, но и практичным. Архитектурное решение подчёркивает актуальные тренды минимализма, создавая идеальное пространство, для тех, кто ценит гармонию природы и современный дизайн.

Планировка дома | функциональное зонирование

Планировка дома разработана с учётом различных потребностей и предполагает гибкость для создания идеального пространства. Вы можете оставить предложенную планировку, которая уже оптимизирована для удобства, или мы можем откорректировать её под определённые параметры и Ваши запросы.

Изменение количества жилых комнат: при необходимости можно добавить комнаты для гостей, детей или рабочего кабинета, или уменьшить их количество, сохранив функциональность.

Гараж и место для машины: вы можете добавить или убрать гараж в зависимости от ваших нужд. Если нужен только паркинг, мы создадим удобное место для одной или нескольких машин.

Дополнительные хозяйственные помещения: мы можем добавить кладовые, прачечные и другие помещения в планировку, для повышения удобства и функциональности вашего дома.

Изменение площади общего пространства: мы можем адаптировать размеры гостиной или кухни, увеличивая или уменьшая их для создания комфортного интерьера.

Мы готовы адаптировать проект дома и его расположение под особенности вашего участка. Это может включать:

- изменение ориентации дома для максимального использования солнечного света.

- расположение дома против ветра/севернее/южнее.

- размещение дома на участке, в зависимости от въезда и так далее.

 Мы стремимся создать комфортное пространство, которое будет соответствовать всем вашим пожеланиям.


Выбор местоположения

Задать вопрос / написать нам

E-mail: domgis@mail.ru

Мы свяжемся с Вами в течение дня.

Тех. поддержка
Предмет обращения:
Тукущая страница

Мы свяжемся с Вами в течение дня.

Уведомление
Предмет обращения:
Тукущая страница
Обратный звонок
Обратный звонок
Выберите ваш город
Пожаловаться

Объявление опубликовано.
Изменения сохранены

Период публикации - бессрочный, при условии подтверждения актуальности каждые 50 дней. Уведомления будут отправляться на Вашу электронную почту.

Выберите причину снятия с публикации

Снятые с публикации объявления не участвуют в поиске и недоступны для подробного просмотра.

Для повторной публикации нажмите «Вернуть в публикацию»