Хайтек Хоум - 244 №93

Цена строительства от 0 ₽* * Стоимость не является окончательной
Заявка на консультацию
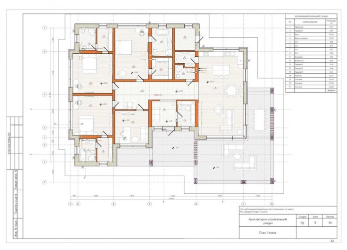
  • Общая площадь 244 м2
  • Длина 24.68 м
  • Ширина 16.5 м
  • Материал стен Кирпич
  • Количество этажей 1
  • Подвал Нет
  • Мансарда без мансарды
  • Гараж Нет
  • Терраса Да
  • Проживание Круглогодичное
  • Количество комнат 5
  • Количество спален 4
  • Количество санузлов 3
  • Вид проекта дом
  • Застройщик Home Village
  • Архитектурный стиль Хай-тек
  • Отделка фасада Штукатурка
  • Крыша Плоская
  • Можно купить домокомплект Нет
  • Модульный тип строения Нет
Планировки
Описание проекта

Дом в стиле Хай-тек представляет собой гармоничное сочетание определенных отделочных материалов и предметов декорирования.

Главная идея hi-tech — совмещение высоких технологий (например, системы «умный дом», встроенной бытовой техники и обильной подсветки) с характерными элементами интерьера и мебелью. Для стиля характерна лаконичность и строгость, которая проявляется и во внешней отделке всего здания.

Основные особенности элементов дома:

Крыша. Обычно применяется плоская крыша, позволяющая увеличить зону комфорта. Нередко на крыше дополнительно располагается терраса или участок для отдыха.

Фасад. Основным модулем постройки служит прямоугольная коробка. Балконы, террасы и различные пристройки нередко имеют нестандартную форму и размеры. Единственное условие — соблюдение лаконичности форм и строгости линий.

Окна. Еще одна характерная черта — большие окна с тонкими рамами. Особое распространение получило безрамное остекление, что позволяет увеличить уровень освещенности помещений и сделать строение более «воздушным».

Выбор местоположения

Задать вопрос / написать нам

E-mail: domgis@mail.ru

Мы свяжемся с Вами в течение дня.

Тех. поддержка
Предмет обращения:
Тукущая страница

Мы свяжемся с Вами в течение дня.

Уведомление
Предмет обращения:
Тукущая страница
Обратный звонок
Обратный звонок
Выберите ваш город
Пожаловаться

Объявление опубликовано.
Изменения сохранены

Период публикации - бессрочный, при условии подтверждения актуальности каждые 50 дней. Уведомления будут отправляться на Вашу электронную почту.

Выберите причину снятия с публикации

Снятые с публикации объявления не участвуют в поиске и недоступны для подробного просмотра.

Для повторной публикации нажмите «Вернуть в публикацию»