Райн №424

Цена строительства от 3 623 000 ₽* * Стоимость не является окончательной
Заявка на консультацию
  • Общая площадь 118 м2
  • Длина 10.85 м
  • Ширина 10.85 м
  • Количество этажей 1
  • Подвал Нет
  • Мансарда без мансарды
  • Гараж Нет
  • Терраса Да
  • Проживание Круглогодичное
  • Количество комнат 4
  • Количество спален 3
  • Количество санузлов 2
  • Вид проекта дом
  • Застройщик МАЛОЭТАЖНЫЕ ДОМА
  • Архитектурный стиль Минимализм
  • Отделка фасада Комбинированная
  • Крыша Плоская
  • Можно купить домокомплект Нет
  • Модульный тип строения Нет
Планировки
Описание проекта

Комплектация:

Перекрытие цоколя (пол 1 этажа) - СИП-панели - 224мм

Наружные стены - СИП-панели - 174мм

Внутренние несущие стены - каркасные - 150мм

Перегородки - каркасные - 100мм

Крыша - плоская, стропильная система 50*200мм с утеплением 200мм.

Разуклонка крыши - из доски 100х40мм

Кровля - ЭПДМ мембрана

Фундамент - винтовые сваи

Оконные конструкции - профиль Rehau, 70 мм

* - стоимость фундамента, крыльца, террасы, балконов, оконных и дверных конструкций рассчитывается отдельно. Стоимость на сайте не является конечной, окончательную стоимость уточняйте у менеджера.

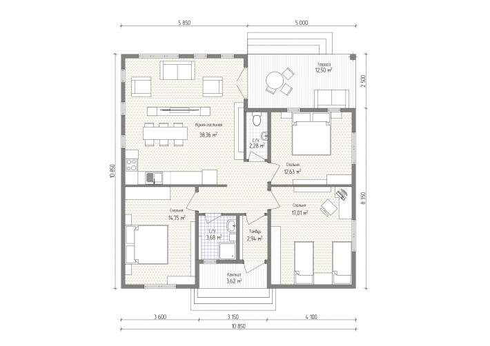
Проект «Райн» - удобный и просторный одноэтажный дом из СИП панелей, общая площадь проекта 117,7 м2. Среди особенностей «Райна» стоит выделить квадратную форму дома, это фактически СИП дом 11 на 11 метров, плоскую крышу и 2 санузла. В проектах одноэтажных СИП домов до 150 м2 обычно не делают 2 санузла, но на 3 спальни (а это от 4 и более домочадцев), второй санузел будет совсем не лишним. Дом оборудован террасой со входом в гостиную и небольшим крыльцом. Причем крыльцо и терраса «утоплены» в коробку дома и потому никаких выступающих элементов здесь нет. Также стоит отметить наличие окон в пол в гостиной.

Планировка дома простая и удобная. Через небольшой тамбур попадаешь в холл, откуда можно пройти в любое помещение дома. А именно, в два санузла, три спальни и совмещенную с кухней гостиную. Спальни в «Райне» просторные, на 14, 17 и 12,63 м2. Кухня-гостиная имеет площадь 38,36 м2.

Вас может заинтересовать
Вас может заинтересовать

Выбор местоположения

Задать вопрос / написать нам

E-mail: domgis@mail.ru

Мы свяжемся с Вами в течение дня.

Тех. поддержка
Предмет обращения:
Тукущая страница

Мы свяжемся с Вами в течение дня.

Уведомление
Предмет обращения:
Тукущая страница
Обратный звонок
Обратный звонок
Выберите ваш город
Пожаловаться

Объявление опубликовано.
Изменения сохранены

Период публикации - бессрочный, при условии подтверждения актуальности каждые 50 дней. Уведомления будут отправляться на Вашу электронную почту.

Выберите причину снятия с публикации

Снятые с публикации объявления не участвуют в поиске и недоступны для подробного просмотра.

Для повторной публикации нажмите «Вернуть в публикацию»