Линия 77 №709

Цена строительства от 3 800 000 ₽* * Стоимость не является окончательной
Заявка на консультацию
  • Общая площадь 93 м2
  • Длина 19 м
  • Ширина 5.6 м
  • Материал стен Каркас
  • Количество этажей 1
  • Подвал Нет
  • Мансарда без мансарды
  • Гараж Нет
  • Терраса Да
  • Проживание Круглогодичное
  • Количество комнат 3
  • Количество спален 2
  • Количество санузлов 1
  • Вид проекта дом
  • Застройщик RICHSPACE
  • Архитектурный стиль Скандинавский
  • Отделка фасада Вагонка
  • Крыша Двускатная
  • Можно купить домокомплект Нет
  • Модульный тип строения Нет
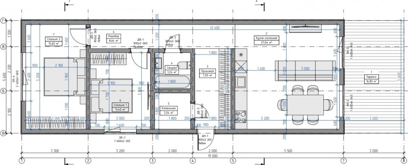
Планировки
Описание проекта
  • Терраса 16.8
  • Кухня-гостиная 27.4
  • Прихожая 7.2
  • Санузел 3.24
  • Коридор 8.64
  • Котельная 3.24
  • Спальня № 1, 11.4
  • Спальня № 2, 15.6

Общая площадь 93.16.


Тёплый контур + коммуникации 3 800 000

С пред чистовой отделкой 6 150 000

С чистовой отделкой 7 350 000


Комплектация теплый контур:

Все коммуникации в доме будут присутствовать:

  •  Тёплые полы
  •  Бетонная стяжка
  •  Мокрые точки кухне, санузлах
  •  Электричество полностью разведено во всем доме в подрозетники
  •  Внутренние коммуникации для подключения газового котла
  •  Водоотведение в септик 6,3 куб.

Практически готовый дом

В доме уже есть всё, кроме фасада и гипса — далее можно завершить отделку в любое время года.

Возможность построить дом большей площадью в сравнении с домом с пред чистовой отделкой за ту же стоимость.

Строительство 2–3 месяца

Быстрый срок возведения дома с коммуникациями.


Дом с готовыми инженерными системами «под ключ». Вам останется только выполнить чистовую отделку!

Мы позаботились о самом главном, чтобы ваше новоселье было по-настоящему комфортным. В стоимость дома уже входит полный комплект современных и надежных инженерных систем:

· ✅ Канализация: Вы получаете готовую систему сточных вод на 6.3 м³, что гарантирует эффективное использование для всей семьи.

· ✅ Эффективная система отопления:

  · Теплый пол повсюду: Равномерное и комфортное тепло по всему дому обеспечивают водяные теплые полы, встроенные в стяжку.

  · Надежный источник тепла: Установлен мощный Электра котёл на 16 кВт.

  · Забота о будущем: Заранее подведены все коммуникации для легкого перехода на газовое отопление при возможности.

· ✅ Полностью готовая электрика:

  · Электрощит установлен, вся проводка разведена и выведены подрозетники для будущих розеток и выключателей.

  · Для вашей кухни уже проложен отдельный силовой кабель для мощной плиты или духового шкафа.

· ✅ Комфортный микроклимат: В санузлах смонтированы вытяжки для поддержания оптимальной влажности.

· ✅ Готовые подключения для сантехники: Все трубы холодного и горячего водоснабжения, а также канализации подведены к местам установки сантехники на кухне и в санузлах.

Заселяйтесь и наслаждайтесь жизнью без лишних хлопот!

Вас может заинтересовать
Вас может заинтересовать

Выбор местоположения

Задать вопрос / написать нам

E-mail: domgis@mail.ru

Мы свяжемся с Вами в течение дня.

Тех. поддержка
Предмет обращения:
Тукущая страница

Мы свяжемся с Вами в течение дня.

Уведомление
Предмет обращения:
Тукущая страница
Обратный звонок
Обратный звонок
Выберите ваш город
Пожаловаться

Объявление опубликовано.
Изменения сохранены

Период публикации - бессрочный, при условии подтверждения актуальности каждые 50 дней. Уведомления будут отправляться на Вашу электронную почту.

Выберите причину снятия с публикации

Снятые с публикации объявления не участвуют в поиске и недоступны для подробного просмотра.

Для повторной публикации нажмите «Вернуть в публикацию»